<img height="1" width="1" style="display:none" src="https://www.facebook.com/tr?id=240549979615277&amp;ev=PageView&amp;noscript=1">
Kanvi Homes ELEMENT Model

the ELEMENT

Open to above Foyer, beautiful staircase, master retreat with two ensuite entrances and more are part of the wonderful Element. 

 

Virtual Tour  FloorPlan

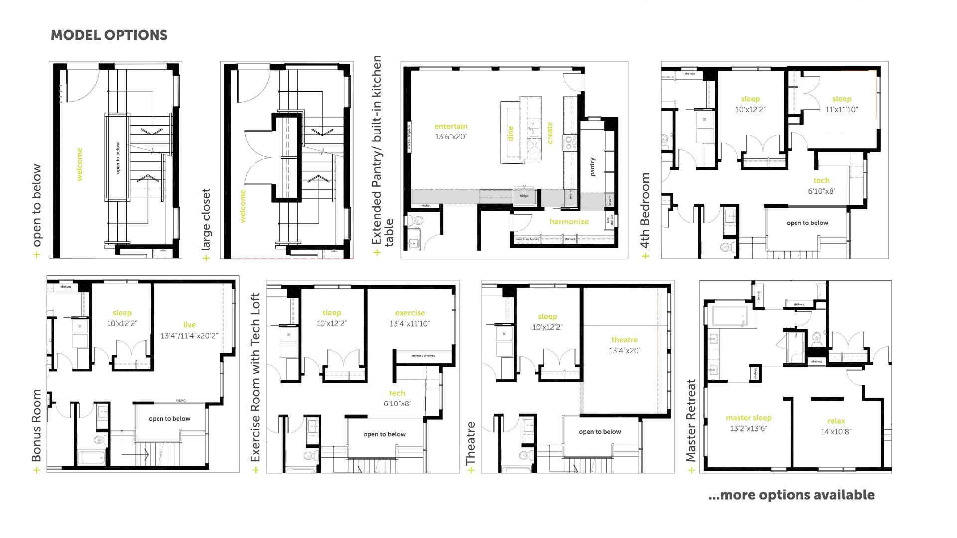
Customize this floor plan

 

Details

  • 2168 Sq.ft.
  • 32' wide
  • 3 bedrooms
  • 2.5 bathrooms
  • Walk through pantry
  • Grand entrance with open to above feature
  • Plenty of Personalization options available.

ELEMENT Design

Kanvi Homes ELEMENT model Kanvi Homes ELEMENT model Kanvi Homes ELEMENT model Kanvi Homes ELEMENT model Kanvi Homes Onyx model

Element Floor Plan

 

Customize this floor plan

 

Element_Upper Kanvi-homes-arbours-of-keswick-element-options

Want to see more? Get the Look Book.

New call-to-action

Have a Question?